William Lyon Homes
Floorplan Level 1
Print | Close
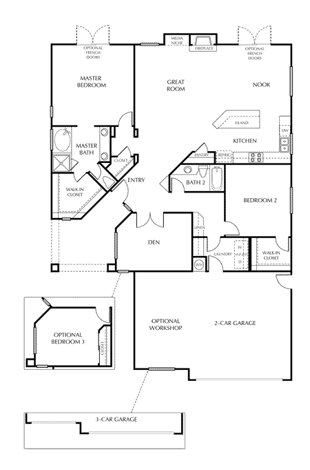
The Groves
Birch


Birch

Floorplans
Level 1

Sq. Feet
1,780
Bedrooms
2 Bedrooms + den
Baths
2 Baths
Garage
3-Car
Price
From the mid $300,000s
Options
Bedroom 3, Workshop




For more information call:
Contact Us Via Email