William Lyon Homes
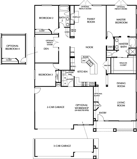
Floorplan Level 1
Print | Close
The Orchards
Mandarin


Mandarin

Floorplans
Level 1

Sq. Feet
2,322
Bedrooms
3 Bedrooms + den
Baths
2 Baths
Garage
3-Car
Price
From the low $400,000's




For more information call: