William Lyon Homes
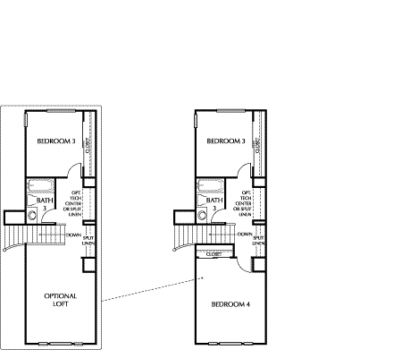
Floorplan Level 2
Print | Close
The Orchards
Tangerine


Tangerine

Floorplans
Level 1
Level 2

Sq. Feet
2,604
Bedrooms
4 Bedrooms + den
Baths
3 Baths
Garage
3-Car
Price
From the low $400,000's




For more information call: